News: Problem bei der Anmeldung? Bitte Mail über das Kontaktformular ganz unten! | garten-pur unterstützen mit einer Spende oder über das Partnerprogramm!
Der Wall (Gelesen 9548 mal)
- Gartenplaner
- Beiträge: 21307
- Registriert: 26. Nov 2010, 22:07
- Wohnort: Süden Luxemburgs, ein paar Kilometer von der französischen Grenze
- Region: „Gutland“, Süden Luxemburgs
- Höhe über NHN: 274-281
- Bodenart: „Töpfer“lehm
- Winterhärtezone: 8a: -12,2 °C bis -9,5 °C
- Kontaktdaten:
-
Nitwit! Blubber! Oddment! Tweak!
Re: Der Wall
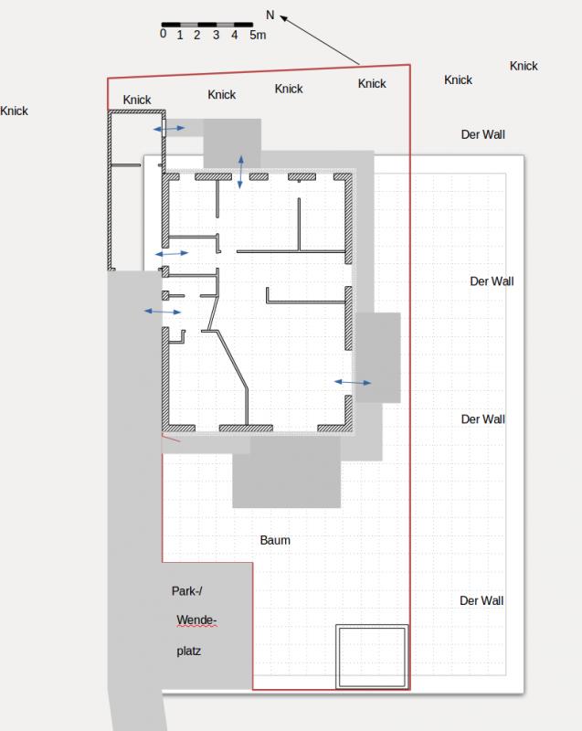
2,5 und 2,7m Tiefe sind nicht so viel für eine Terrasse - was soll drauf?
Tisch, Stühle, Liegestuhl?
Tisch, Stühle, Liegestuhl?
Wer meinen Lern-Garten sehen will - unterm Goldfrosch-Bild den Globus klicken!
Erich Kästner, (1933/46), Ein alter Mann geht vorüber
“Frei zu sein bedeutet nicht nur seine eigenen Ketten abzulegen, sondern sein Leben so respektvoll zu leben, dass es die Freiheit anderer steigert.“ Nelson Mandela
Erich Kästner, (1933/46), Ein alter Mann geht vorüber
“Frei zu sein bedeutet nicht nur seine eigenen Ketten abzulegen, sondern sein Leben so respektvoll zu leben, dass es die Freiheit anderer steigert.“ Nelson Mandela
Re: Der Wall
Der Esstisch ist gerade mit Klebeband eingesperrt worden, damit ich mit den Größenangaben besser klar komme. Ja, es ist schmal - meine erste Idee: die Terrasse an der Seite etwas nach oben verschieben, damit der Sitzplatz von der Tür wegrückt und der Weg zur unteren freier wird ... und die untere Terrasse verbreitern / vergrößern.
Liegestühle? Waren bislang nicht so unser Ding, vielleicht kommt das ja noch. Aber ich denke, die werden dann nach Bedarf platziert.
Auf der "großen" Terrasse sollen 5-6 Personen gemütlich essen können, 8 Personen einigermaßen bequem und 10 Personen wie im Flugzeug .... werden es mehr, verteilt es sich erfahrungsgemäß sowieso auf mehrere Plätze (*5 sind geladen, 10 sind gekommen - tu Wasser in die Suppe, heiß alle willkommen* - Zitat Oma)
Liegestühle? Waren bislang nicht so unser Ding, vielleicht kommt das ja noch. Aber ich denke, die werden dann nach Bedarf platziert.
Auf der "großen" Terrasse sollen 5-6 Personen gemütlich essen können, 8 Personen einigermaßen bequem und 10 Personen wie im Flugzeug .... werden es mehr, verteilt es sich erfahrungsgemäß sowieso auf mehrere Plätze (*5 sind geladen, 10 sind gekommen - tu Wasser in die Suppe, heiß alle willkommen* - Zitat Oma)
- AndreasR
- Garten-pur Team
- Beiträge: 17081
- Registriert: 8. Feb 2017, 00:36
- Wohnort: bei Bad Kreuznach
- Region: Naheland (RLP)
- Höhe über NHN: 180 m ü. M.
- Bodenart: lehmig
- Winterhärtezone: 8a: -12,2 °C bis -9,5 °C
- Kontaktdaten:
Re: Der Wall
2,70 m ist definitiv zu schmal für einen Tisch mit Stühlen (die oft ja auch etwas größer ausfallen als die vom Esstisch im Haus). Abgesehen von der Stellfläche braucht man auf beiden Seiten genug Platz, um an den Stühlen vorbeizugehen, wenn dort jemand sitzt. Ich würde da auf jeden Fall noch mindestens 0,50 bis 1,00 m draufschlagen.
Wenn man es ordentlich verlegt, ist Rechteckpflaster gar nicht so schlecht, ich habe hier für den Fußweg zur Haustür 6 cm starkes Pflaster in "herbstbunt" verwendet, was nicht so langweilig wie eine einheitliche Färbung aussieht, aber das hängt natürlich auch vom Charakter von Haus und Garten ab. Für befahrene Flächen ist 8 cm starkes Pflaster sicher angeraten, samt ausreichend tragfähigem Unterbau.
Wenn man es ordentlich verlegt, ist Rechteckpflaster gar nicht so schlecht, ich habe hier für den Fußweg zur Haustür 6 cm starkes Pflaster in "herbstbunt" verwendet, was nicht so langweilig wie eine einheitliche Färbung aussieht, aber das hängt natürlich auch vom Charakter von Haus und Garten ab. Für befahrene Flächen ist 8 cm starkes Pflaster sicher angeraten, samt ausreichend tragfähigem Unterbau.
- Gartenplaner
- Beiträge: 21307
- Registriert: 26. Nov 2010, 22:07
- Wohnort: Süden Luxemburgs, ein paar Kilometer von der französischen Grenze
- Region: „Gutland“, Süden Luxemburgs
- Höhe über NHN: 274-281
- Bodenart: „Töpfer“lehm
- Winterhärtezone: 8a: -12,2 °C bis -9,5 °C
- Kontaktdaten:
-
Nitwit! Blubber! Oddment! Tweak!
Re: Der Wall
Für 5-6 Personen sollte die Terrasse mindestens 4x6m gross sein, für 2 Personen reicht 2x3m.
Wenn dann noch mehr da sind, wirds schon kuschelig, und mit dem Grill will kaum einer kuscheln ;)
Sonnenliegen kann man auch gut auf den Rasen schieben, die braucht man vielleicht nicht unbedingt einplanen.
Vielleicht die Terrasse rechts am Haus eher als "Frühstücksterrasse" für den "kleinen Kreis" gestalten und dafür die Terrasse unten etwas grosszügiger?
Wenn dann noch mehr da sind, wirds schon kuschelig, und mit dem Grill will kaum einer kuscheln ;)
Sonnenliegen kann man auch gut auf den Rasen schieben, die braucht man vielleicht nicht unbedingt einplanen.
Vielleicht die Terrasse rechts am Haus eher als "Frühstücksterrasse" für den "kleinen Kreis" gestalten und dafür die Terrasse unten etwas grosszügiger?
Wer meinen Lern-Garten sehen will - unterm Goldfrosch-Bild den Globus klicken!
Erich Kästner, (1933/46), Ein alter Mann geht vorüber
“Frei zu sein bedeutet nicht nur seine eigenen Ketten abzulegen, sondern sein Leben so respektvoll zu leben, dass es die Freiheit anderer steigert.“ Nelson Mandela
Erich Kästner, (1933/46), Ein alter Mann geht vorüber
“Frei zu sein bedeutet nicht nur seine eigenen Ketten abzulegen, sondern sein Leben so respektvoll zu leben, dass es die Freiheit anderer steigert.“ Nelson Mandela
Re: Der Wall
Danke für eure Hinweise :)
Die untere Terrasse hab ich jetzt auf 4x6 vergrößert (da bleibt ja fast nix mehr für Garten übrig) und die an der Seite nach oben geschoben,
so dass der Schiebetürendurchgang möglichst frei von Mobiliar bleiben kann. Bei einer Breite von 2,5m blieben hier nur etwa 30-40 cm zum
Zaun - wird wohl ziemlich knapp für Stauden/Sträucher. Also Zaun beranken lassen oder über einen hängenden Kräutergarten nachdenken?
Über den Weg zum Gartenhaus muss ich noch nachdenken - mir scheint die Menge an Pflaster eigentlich schon viel zu groß durch die lange
Einfahrtund den Wendeplatz. Aber der muss leider sein, denn zur Straße sind es nochmal etwa 60 m über das Grundstück des vorne stehenden
Hauses.
Die untere Terrasse hab ich jetzt auf 4x6 vergrößert (da bleibt ja fast nix mehr für Garten übrig) und die an der Seite nach oben geschoben,
so dass der Schiebetürendurchgang möglichst frei von Mobiliar bleiben kann. Bei einer Breite von 2,5m blieben hier nur etwa 30-40 cm zum
Zaun - wird wohl ziemlich knapp für Stauden/Sträucher. Also Zaun beranken lassen oder über einen hängenden Kräutergarten nachdenken?
Über den Weg zum Gartenhaus muss ich noch nachdenken - mir scheint die Menge an Pflaster eigentlich schon viel zu groß durch die lange
Einfahrtund den Wendeplatz. Aber der muss leider sein, denn zur Straße sind es nochmal etwa 60 m über das Grundstück des vorne stehenden
Hauses.
Re: Der Wall
Wenn auf deine Terrasse nur ein Tisch (hier 1,60x1m) und darum 6 Stühle sollen, reichen hier bei uns 4x4 m problemlos. Da ist Platz vor dem Tisch, wenn ich aus der Tür gehe, so dass ich da bei Bedarf noch einen Liegestuhl mit in den Schatten des Sonnenschirmes stellen kann. Auch 3 Kübel an den Ecken und ein Sonnenschirm mit Bodenverankerung in der Eckplatte der Terrasse finden darauf noch Platz. Der Grill steht extra. Nur mal aus meiner Erfahrung hier berichtet.
Wenn du einen längeren Tisch möchtest, damit mehr als 2 Personen an jeder Längsseite Platz finden, müssen es mehr als die 4 m an der Längsseite der Terrasse sein, um noch am Kopfende sitzen zu können.
Wenn du einen längeren Tisch möchtest, damit mehr als 2 Personen an jeder Längsseite Platz finden, müssen es mehr als die 4 m an der Längsseite der Terrasse sein, um noch am Kopfende sitzen zu können.
Sonnigliebe Grüße
Anke
Anke
Re: Der Wall
muß denn der geräteschuppen sein, oder habt ihr noch genug platz in einer garage? könnte man den schuppen, wenn man ihn braucht, nicht an einer unattraktivere stelle versetzen, zb hinters haus?
so steht er prominent mitten im eh schon kleinen garten. da ist dann wirklich alles zugebaut.
wir brauchten leider den platz von gerätehäusern, weil wir ein sehr kleines haus ohne keller und garage haben. wir haben in unserem garten die schuppen klein gewählt(2 hintereinander, damit wir sie platzsparend auf der unschönen seite unterbringen konnten, ein großer hätte an die stelle nicht hingepaßt) und hinters haus gepackt. die lage stört nicht, nur die insgesamte größe(nur insgesamt 4m2). wobei ich'S für den jetzt größeren garten wieder so machen würde, der zugewinn an lebensqualität durch mehr entspannendes schönes grün wiegt den gelegentlichen mehraufwand durch verstau probleme auf.
so steht er prominent mitten im eh schon kleinen garten. da ist dann wirklich alles zugebaut.
wir brauchten leider den platz von gerätehäusern, weil wir ein sehr kleines haus ohne keller und garage haben. wir haben in unserem garten die schuppen klein gewählt(2 hintereinander, damit wir sie platzsparend auf der unschönen seite unterbringen konnten, ein großer hätte an die stelle nicht hingepaßt) und hinters haus gepackt. die lage stört nicht, nur die insgesamte größe(nur insgesamt 4m2). wobei ich'S für den jetzt größeren garten wieder so machen würde, der zugewinn an lebensqualität durch mehr entspannendes schönes grün wiegt den gelegentlichen mehraufwand durch verstau probleme auf.
Re: Der Wall
hängender kräutergarten stell ich mir recht aufwändig vor, ob man so ein konzept durchhält?
Re: Der Wall
DerSchuppen muss leider sein, kein Keller und kein Dachboden. Und hinterm Haus ist es durch den Knick eh schon so beengt. Den Knick darf ich auch nicht wegnehmen ... oder für jeden entfernten 2 m neuen anlegen.
... könnte ja versuchen, den Wall als solchen zu deklarieren 8)
... könnte ja versuchen, den Wall als solchen zu deklarieren 8)
- AndreasR
- Garten-pur Team
- Beiträge: 17081
- Registriert: 8. Feb 2017, 00:36
- Wohnort: bei Bad Kreuznach
- Region: Naheland (RLP)
- Höhe über NHN: 180 m ü. M.
- Bodenart: lehmig
- Winterhärtezone: 8a: -12,2 °C bis -9,5 °C
- Kontaktdaten:
Re: Der Wall
Hinter der Garage ist doch ein Raum, reicht der für die Gerätschaften nicht aus? Falls nicht, wäre es vielleicht eine Überlegung wert, den geplanten Park- und Wendeplatz mit einem Carport auszustatten, an den man den Schuppen angliedern kann?
Re: Der Wall
Der Raum wird von bösen Zungen schon "die Halle" genannt. Aktuell steht da der Akku für die PV-Anlage (etwa Kühlschrankformat), einziehen werden da noch Kühltruhe und Zweitkühlschrank ... dann bleibt nicht mehr wirklich viel Platz ..... und der Hund braucht auch noch einen Liegeplatz, damit er bei Schietwetter den gröbsten Dreck dort lassen kann.
Carport ist erst mal, wenn überhaupt für viel später angedacht.
Carport ist erst mal, wenn überhaupt für viel später angedacht.
- zwerggarten
- Beiträge: 21151
- Registriert: 1. Jan 2014, 00:00
- Wohnort: berlin
- Region: märkische streusandbüchse/lüneburger heide
- Bodenart: sandiger hortisol/podsol
- Winterhärtezone: 7a: -17,7 °C bis -15,0 °C
-
berlin|7a|42 uelzen|7a|70
Re: Der Wall
und warum genau muss dieses ersatzkeller-"gartenhaus" nun unbedingt möglichst haus- und wegfern so auf der rest-mini-gartenfläche stehen, dass diese noch mehr durch den zugangsbereich und die zuwegung reduziert wird? wieso kann der nicht wenigstens direkt an der gepflasterten fahrbahn stehen, damit überhaupt etwas bleibt, wo nicht ständig durchgelatscht werden muss?!
ich verstehe es nicht... :-\
ich verstehe es nicht... :-\
pro luto esse
moin
"(…) die abstrakten worte, deren sich doch die zunge naturgemäß bedienen muß, um irgend welches urteil an den tag zu geben, zerfielen mir im munde wie modrige pilze." hugo von hofmannsthal – der brief des lord chandos
moin
"(…) die abstrakten worte, deren sich doch die zunge naturgemäß bedienen muß, um irgend welches urteil an den tag zu geben, zerfielen mir im munde wie modrige pilze." hugo von hofmannsthal – der brief des lord chandos
- Gartenplaner
- Beiträge: 21307
- Registriert: 26. Nov 2010, 22:07
- Wohnort: Süden Luxemburgs, ein paar Kilometer von der französischen Grenze
- Region: „Gutland“, Süden Luxemburgs
- Höhe über NHN: 274-281
- Bodenart: „Töpfer“lehm
- Winterhärtezone: 8a: -12,2 °C bis -9,5 °C
- Kontaktdaten:
-
Nitwit! Blubber! Oddment! Tweak!
Re: Der Wall
Man KÖNNTE so ein Häusschen auch zum Blickfang von der Terrasse aus gestalten....
Es gibt zwei gestalterische Überlegungen - ist das Häusschen an den Wendeplatz angedockt, Variante A, bleibt gefühlt mehr durchgehende Gartenfläche, der Zugang vom Wendeplatz wäre recht praktisch, steht das Häusschen rechts, Variante B, könnte man das Problem zum Feature machen und den Garten in mehrere getrennte Räume untergliedern.
Und er würde dadurch auch größer wirken.
Es gibt zwei gestalterische Überlegungen - ist das Häusschen an den Wendeplatz angedockt, Variante A, bleibt gefühlt mehr durchgehende Gartenfläche, der Zugang vom Wendeplatz wäre recht praktisch, steht das Häusschen rechts, Variante B, könnte man das Problem zum Feature machen und den Garten in mehrere getrennte Räume untergliedern.
Und er würde dadurch auch größer wirken.
Wer meinen Lern-Garten sehen will - unterm Goldfrosch-Bild den Globus klicken!
Erich Kästner, (1933/46), Ein alter Mann geht vorüber
“Frei zu sein bedeutet nicht nur seine eigenen Ketten abzulegen, sondern sein Leben so respektvoll zu leben, dass es die Freiheit anderer steigert.“ Nelson Mandela
Erich Kästner, (1933/46), Ein alter Mann geht vorüber
“Frei zu sein bedeutet nicht nur seine eigenen Ketten abzulegen, sondern sein Leben so respektvoll zu leben, dass es die Freiheit anderer steigert.“ Nelson Mandela
- zwerggarten
- Beiträge: 21151
- Registriert: 1. Jan 2014, 00:00
- Wohnort: berlin
- Region: märkische streusandbüchse/lüneburger heide
- Bodenart: sandiger hortisol/podsol
- Winterhärtezone: 7a: -17,7 °C bis -15,0 °C
-
berlin|7a|42 uelzen|7a|70
Re: Der Wall
ein fahrradschuppen als feature? und die wege zum an- und abtransport des schuppeninhalts als raumgliedernde strukturen, welche die da etwa 100 m² große gartenfläche (mit bewegungsflächen zum/vom schuppen) größer wirken lassen?
pro luto esse
moin
"(…) die abstrakten worte, deren sich doch die zunge naturgemäß bedienen muß, um irgend welches urteil an den tag zu geben, zerfielen mir im munde wie modrige pilze." hugo von hofmannsthal – der brief des lord chandos
moin
"(…) die abstrakten worte, deren sich doch die zunge naturgemäß bedienen muß, um irgend welches urteil an den tag zu geben, zerfielen mir im munde wie modrige pilze." hugo von hofmannsthal – der brief des lord chandos
- Gartenplaner
- Beiträge: 21307
- Registriert: 26. Nov 2010, 22:07
- Wohnort: Süden Luxemburgs, ein paar Kilometer von der französischen Grenze
- Region: „Gutland“, Süden Luxemburgs
- Höhe über NHN: 274-281
- Bodenart: „Töpfer“lehm
- Winterhärtezone: 8a: -12,2 °C bis -9,5 °C
- Kontaktdaten:
-
Nitwit! Blubber! Oddment! Tweak!
Re: Der Wall
zwerggarten hat geschrieben: ↑16. Jun 2017, 01:28
ein fahrradschuppen als feature?...[/quote]
Ja.
Mit etwas Phantasie und Kreativität und selber bauen.
[quote author=zwerggarten link=topic=61149.msg2893220#msg2893220 date=1497569335]
und die wege zum an- und abtransport des schuppeninhalts als raumgliedernde strukturen, welche die da etwa 100 m² große gartenfläche (mit bewegungsflächen zum/vom schuppen) größer wirken lassen?
Nö, mit Hecken den Garten in verschiedene Räume unterteilen, einer davon der Bereich zwischen Schuppen und Wendeplatzgrenze. (geht aber genausogut bei Variante A)
Eine zweite Möglichkeit wäre, am linken Rand der Terrasse entlang zum Wendeplatz runter noch eine Raumgrenze zu ziehen.
Mit welchen Nutzungen die Räume gefüllt werden sollen, müsste man sich dann überlegen.
Wer meinen Lern-Garten sehen will - unterm Goldfrosch-Bild den Globus klicken!
Erich Kästner, (1933/46), Ein alter Mann geht vorüber
“Frei zu sein bedeutet nicht nur seine eigenen Ketten abzulegen, sondern sein Leben so respektvoll zu leben, dass es die Freiheit anderer steigert.“ Nelson Mandela
Erich Kästner, (1933/46), Ein alter Mann geht vorüber
“Frei zu sein bedeutet nicht nur seine eigenen Ketten abzulegen, sondern sein Leben so respektvoll zu leben, dass es die Freiheit anderer steigert.“ Nelson Mandela