News: Problem bei der Anmeldung? Bitte Mail über das Kontaktformular ganz unten! | garten-pur unterstützen mit einer Spende oder über das Partnerprogramm!
Welche Süßkirsche für meinen Garten? (Gelesen 6055 mal)
Moderator: cydorian
Welche Süßkirsche für meinen Garten?
Hallo zusammen,
ich versuche mich gerade etwas in das Thema Obstbäume zu lesen.. ist ja alles komplexer, als man sich das vorstellt.
Meine Frau hat sich Schneiders Späte Knorpelkirsche ausgesucht.
Vom Standort her soll der Baum in eine Ecke des Grundstücks (siehe Bild) und dabei aber nicht übermäßig riesig werden, weil er dann die Morgensonne für die Terrasse nimmt.
Man sieht die Terrasse unten recht im Bild, diese ist nach Süden ausgerichtet, die Grenze oben links im Bild ist ziemlich genau Osten.
Standort hab ich rot eingezeichnet.
Bestellt ist aktuell die hier
Link entfernt!1/suesskirsche-schneiders-spaete-knorpelkirsche
als Halbstamm. Bin von Gisela als Unterlage ausgegangen, das gilt aber nur für den Buschbaum. Hab angerufen und nach er Unterlage gefragt, ich habs leider versäumt den genauen Typ anzufragen, aber es ist eine Vogelkirsch-Unterlage.
Ich würde ja auf den Buschbaum ausweichen aber meine Frau hat Bedenken keinen "richtigen Baum" zu bekommen sondern irgendsoeine in die breite wachsende Kugel die sie aus anderen Gärten kennt.. wahrscheinlich absolut ungepflegte Obstbäume.
Den Buschaum würde ich aber nicht als Spindel ziehen wollen sondern schon mit Leitästen so dass eine Krone mit vielleicht 3m Durchmesser entsteht..
Haut das mit einer Gisela hin?
Und wie ist das mit der Vogelkirsch-Unterlage zu bewerten? Wie groß wird der?
1min. Beitragsanzahl noch nicht erreicht
ich versuche mich gerade etwas in das Thema Obstbäume zu lesen.. ist ja alles komplexer, als man sich das vorstellt.
Meine Frau hat sich Schneiders Späte Knorpelkirsche ausgesucht.
Vom Standort her soll der Baum in eine Ecke des Grundstücks (siehe Bild) und dabei aber nicht übermäßig riesig werden, weil er dann die Morgensonne für die Terrasse nimmt.
Man sieht die Terrasse unten recht im Bild, diese ist nach Süden ausgerichtet, die Grenze oben links im Bild ist ziemlich genau Osten.
Standort hab ich rot eingezeichnet.
Bestellt ist aktuell die hier
Link entfernt!1/suesskirsche-schneiders-spaete-knorpelkirsche
als Halbstamm. Bin von Gisela als Unterlage ausgegangen, das gilt aber nur für den Buschbaum. Hab angerufen und nach er Unterlage gefragt, ich habs leider versäumt den genauen Typ anzufragen, aber es ist eine Vogelkirsch-Unterlage.
Ich würde ja auf den Buschbaum ausweichen aber meine Frau hat Bedenken keinen "richtigen Baum" zu bekommen sondern irgendsoeine in die breite wachsende Kugel die sie aus anderen Gärten kennt.. wahrscheinlich absolut ungepflegte Obstbäume.
Den Buschaum würde ich aber nicht als Spindel ziehen wollen sondern schon mit Leitästen so dass eine Krone mit vielleicht 3m Durchmesser entsteht..
Haut das mit einer Gisela hin?
Und wie ist das mit der Vogelkirsch-Unterlage zu bewerten? Wie groß wird der?
1min. Beitragsanzahl noch nicht erreicht
Klimazone 6a
- Mediterraneus
- Beiträge: 29675
- Registriert: 7. Feb 2011, 11:41
- Region: Südspessart
- Höhe über NHN: Ort: 195-450m, Garten: 310-315m
- Bodenart: Roter Buntsandstein
- Winterhärtezone: 7a: -17,7 °C bis -15,0 °C
Re: Welche Süßkirsche für meinen Garten?
Auf Vogelkirsche wird das ein großer Kirschbaum. 12 m plus hoch.
Gisela 5 hat ca. 70 % der Wuchsstärke, meine ich.
Ich habe eine Burlat auf Gisela 5, ist ein Niederstamm (Stammhöhe ca. 1 m). Das wird auch ein Baum, wies aussieht.
Gisela 5 hat ca. 70 % der Wuchsstärke, meine ich.
Ich habe eine Burlat auf Gisela 5, ist ein Niederstamm (Stammhöhe ca. 1 m). Das wird auch ein Baum, wies aussieht.
LG aus dem südlichen Main-Viereck
Mediterraneus
Andere haben schließlich auch irgendeine Ahnung
Mediterraneus
Andere haben schließlich auch irgendeine Ahnung
- cydorian
- Garten-pur Team
- Beiträge: 12826
- Registriert: 19. Nov 2005, 14:29
- Höhe über NHN: 190
- Bodenart: 30cm toniger Lehm auf Muschelkalk
- Kontaktdaten:
Re: Welche Süßkirsche für meinen Garten?
SirSydom hat geschrieben: ↑4. Apr 2019, 15:00
Den Buschaum würde ich aber nicht als Spindel ziehen wollen sondern schon mit Leitästen so dass eine Krone mit vielleicht 3m Durchmesser entsteht..
Haut das mit einer Gisela hin?
Gisela5 erreicht 50-60% der Wuchskraft einer Vogelkirschunterlage. 3m Kronendurchmesser ist sehr wenig. Das Grundstück sieht doch leer aus, wenn du 5m einplanst (Äste also 2,5m lang) hast du auf Gisela5 nur wenig Schnittarbeit und einen stabilen Baum. Ob Busch oder Halbstamm ist nicht besonders wichtig, ob die Verzweigung nun bei 60cm oder 120cm beginnt... Unterm Halbstamm kannst du leichter mähen.
Re: Welche Süßkirsche für meinen Garten?
So schön ich große Obstbäume finde und so ökologisch wertvoll sie auch sind, für nicht allzu große Gärten würde ich da eher abraten, allen voran bei Kirschen.
Mein Burlat-Halbstamm, ebenso auf Sämling veredelt, ist mittlerweile gut acht Meter hoch und aufgrund der Größe kann ich den Baum mit keinem Netz mehr schützen, sodass ich von dem Baum aufgrund der vielen Vögel noch nie etwas geerntet habe. Schwierig ist bei so einem hohen Baum auch die Ernte, da meistens nicht sehr viele Äste vom Boden aus erreichbar sind und nach einigen Jahren die schönsten Früchte weit oben hängen.
Daneben die Sunburst auf GiSelA 5, die sich nach acht Jahren mit sechs Metern Höhe auch zu einem schönen Baum entwickelt hat, macht sich da schon wesentlich besser. Letztes Jahr konnte ich die Kirschen mit einem 8x8m großen Netz vor Vogelfraß schützen und kam mit dem Obstpflücker problemlos an alle Früchte.
Ihr müsst den Baum ja nicht so wie er kommen würde als Buschbaum erziehen. Buschbaum heißt ja nichts anderes als dass der Baum zwar schwächer wächst aber dafür der Stamm nur gut 40-60 cm hoch ist. Wenn du alle Seitenäste bis zu einer Höhe von 1,20-1,50 Meter entfernst und den Baum erst dann verzweigen lässt hast du auch einen Halbstamm, nur nicht ganz so stark wachsend. Und GiSelA 5 ist nach acht Jahren auch standfest. Die Vorteile liegen auf der Hand, schau dass du die Schneider's noch auf GiSelA 5 bekommen kannst und nicht auf Sämling!
An sich ist die Schneider's eine sehr gute Knorpelkirsche, schön süß und fest. Ich mag sie sehr gerne. Du musst aber auch schauen, dass im Umkreis von ca. 300 Meter noch eine passende Befruchtersorte steht, damit sie ausreichend Früchte trägt. Dies wären z.B. Hedelfinger, Große Prinzesskirsche, Große Schwarze Knorpel oder Regina.
Mein Burlat-Halbstamm, ebenso auf Sämling veredelt, ist mittlerweile gut acht Meter hoch und aufgrund der Größe kann ich den Baum mit keinem Netz mehr schützen, sodass ich von dem Baum aufgrund der vielen Vögel noch nie etwas geerntet habe. Schwierig ist bei so einem hohen Baum auch die Ernte, da meistens nicht sehr viele Äste vom Boden aus erreichbar sind und nach einigen Jahren die schönsten Früchte weit oben hängen.
Daneben die Sunburst auf GiSelA 5, die sich nach acht Jahren mit sechs Metern Höhe auch zu einem schönen Baum entwickelt hat, macht sich da schon wesentlich besser. Letztes Jahr konnte ich die Kirschen mit einem 8x8m großen Netz vor Vogelfraß schützen und kam mit dem Obstpflücker problemlos an alle Früchte.
Ihr müsst den Baum ja nicht so wie er kommen würde als Buschbaum erziehen. Buschbaum heißt ja nichts anderes als dass der Baum zwar schwächer wächst aber dafür der Stamm nur gut 40-60 cm hoch ist. Wenn du alle Seitenäste bis zu einer Höhe von 1,20-1,50 Meter entfernst und den Baum erst dann verzweigen lässt hast du auch einen Halbstamm, nur nicht ganz so stark wachsend. Und GiSelA 5 ist nach acht Jahren auch standfest. Die Vorteile liegen auf der Hand, schau dass du die Schneider's noch auf GiSelA 5 bekommen kannst und nicht auf Sämling!
An sich ist die Schneider's eine sehr gute Knorpelkirsche, schön süß und fest. Ich mag sie sehr gerne. Du musst aber auch schauen, dass im Umkreis von ca. 300 Meter noch eine passende Befruchtersorte steht, damit sie ausreichend Früchte trägt. Dies wären z.B. Hedelfinger, Große Prinzesskirsche, Große Schwarze Knorpel oder Regina.
Re: Welche Süßkirsche für meinen Garten?
Hallo zusammen!
Danke erstmal für die hilfreichen Antworten und Tipps.
Bei der Baumschule bei der aktuell die Bestellung schon läuft aber noch geändert werden kann bekomme ich einen Buschbaum auf "Gisela 7"
Dazu konnte ich Online jetzt praktisch nicht finden. Unterscheidet sich Gisela 5 stark von der Gisela 7 ?
Danke erstmal für die hilfreichen Antworten und Tipps.
Bei der Baumschule bei der aktuell die Bestellung schon läuft aber noch geändert werden kann bekomme ich einen Buschbaum auf "Gisela 7"
Dazu konnte ich Online jetzt praktisch nicht finden. Unterscheidet sich Gisela 5 stark von der Gisela 7 ?
Klimazone 6a
- cydorian
- Garten-pur Team
- Beiträge: 12826
- Registriert: 19. Nov 2005, 14:29
- Höhe über NHN: 190
- Bodenart: 30cm toniger Lehm auf Muschelkalk
- Kontaktdaten:
Re: Welche Süßkirsche für meinen Garten?
Gisela 3 = 30% Wuchsstärke
Gisela 5 = 50% Wuchsstärke
Gisela 7 = 70% Wuchsstärke
Gisela 5 = 50% Wuchsstärke
Gisela 7 = 70% Wuchsstärke
Re: Welche Süßkirsche für meinen Garten?
ahhh Danke!
habe die Kirsche nun geändert auf Busch auf Gisela 7 und werde die eher Richtung Halbstamm ziehen. Rasen mäht zwar der Robby, aber ich mag das trotzdem nicht wenn die Äste so nah am Boden sind. Hab dir Kirsche und Birne getauscht vom Standort wegen der Befruchter.
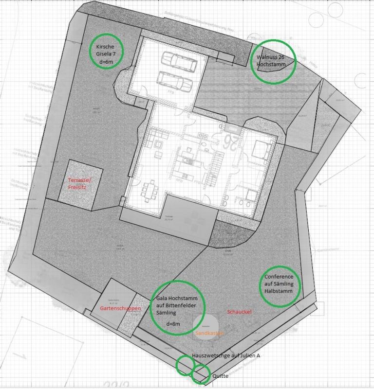
Hier mal meine Obstbaumplanung als Anhang.
Walnuss und Quitte sind schon gepflanzt.
habe die Kirsche nun geändert auf Busch auf Gisela 7 und werde die eher Richtung Halbstamm ziehen. Rasen mäht zwar der Robby, aber ich mag das trotzdem nicht wenn die Äste so nah am Boden sind. Hab dir Kirsche und Birne getauscht vom Standort wegen der Befruchter.
Hier mal meine Obstbaumplanung als Anhang.
Walnuss und Quitte sind schon gepflanzt.
Klimazone 6a
Re: Welche Süßkirsche für meinen Garten?
Kirschenunterlage Gisela 7 gibt es aber nicht! Oder habe ich da etwas verschlafen - sollte wohl Gisela 6, 12 oder 13 heißen
Re: Welche Süßkirsche für meinen Garten?
Aus Rücksicht auf Nachbarn sollte man es vermeiden, möglichst große Bäume möglichst nah an der Grundstücksgrenze zu pflanzen. Sie können lange Schatten werfen und die gärtnerische Möglichkeiten von anderen Menschen stark beeinträchtigen. Ein Walnussbaum ist wegen der Ausscheidungen der Wurzeln und den Gerbstoffen und Pilzen in den Blättern bzw. Nusshüllen besonders problematisch.
Re: Welche Süßkirsche für meinen Garten?
Ich habe die Süßkirschen Regina und Sylvia (und die Sauerkirsche Morina) als Buschbaüme jeweils auf Gisela 5 veredelt. Das Wachstum ist absolut moderat. Die bd. Kirschen befruchten sich gegenseitig, Regina schmeckt besser als Sylvia (ist aber o.k.).
Bei einem Pflanzabstand von jeweils gut 1,5m erreicht die Morina bis jetzt ca. 2,3m Höhe, Sylvia knapp 2m bei sehr kleiner Krone, Regina nicht repräsentativ (da der alte Ontariohochstamm leider auf das Bäumlein gefallen ist). Die ''Bäume sind jetzt 6 oder 7 Jahre alt.
Von noch schwächer wachsenden Gisela 3 wird vom Obstzentrum Jork abgeraten.
Bei einem Pflanzabstand von jeweils gut 1,5m erreicht die Morina bis jetzt ca. 2,3m Höhe, Sylvia knapp 2m bei sehr kleiner Krone, Regina nicht repräsentativ (da der alte Ontariohochstamm leider auf das Bäumlein gefallen ist). Die ''Bäume sind jetzt 6 oder 7 Jahre alt.
Von noch schwächer wachsenden Gisela 3 wird vom Obstzentrum Jork abgeraten.
Klimazone 8a (Innenstadtgarten 8b)
Re: Welche Süßkirsche für meinen Garten?
@ kärntner.
Kirschunterlage Gisela 7 gibt es nicht, Gisela 17 aber schon.
https://baumschule-stahl.de/veredelungsunterlagene7e3.html?DOC_INST=3
Kirschunterlage Gisela 7 gibt es nicht, Gisela 17 aber schon.
https://baumschule-stahl.de/veredelungsunterlagene7e3.html?DOC_INST=3
-
pruimenpit
Re: Welche Süßkirsche für meinen Garten?
Es gibt beides Gi 7 und Gi17.
Gisela 7 liegt in der Wuchsstärke - wie Cydorian oben geschrieben hat - über Gisela 5 ( und unter Gisela 6).
siehe auch https://de.scribd.com/document/374226158/Cherries-Botany-Production-and-Uses
Da steht auf S. 123 über GiSelA 7’, (‘Gi 148/8’) P. cerasus ×P. canescens
"moderate vigour, high soil adaptability, good precocity and productivity"
und auf S. 131
"GiSelA 7’ (syn. ‘Gi 148/8’)
This is a semi-dwarfing to moderately vigorous rootstock known for having good site adaptability (Table 6.2). It tolerates heavy clay and moist soils. Trees grafted on ‘GiSelA 7’ grow a little more vigorously than those on ‘GiSelA 5’ but less vigorously than those on ‘GiSelA 6’. This rootstock has not yet been thoroughly tested."
Gisela 7 liegt in der Wuchsstärke - wie Cydorian oben geschrieben hat - über Gisela 5 ( und unter Gisela 6).
siehe auch https://de.scribd.com/document/374226158/Cherries-Botany-Production-and-Uses
Da steht auf S. 123 über GiSelA 7’, (‘Gi 148/8’) P. cerasus ×P. canescens
"moderate vigour, high soil adaptability, good precocity and productivity"
und auf S. 131
"GiSelA 7’ (syn. ‘Gi 148/8’)
This is a semi-dwarfing to moderately vigorous rootstock known for having good site adaptability (Table 6.2). It tolerates heavy clay and moist soils. Trees grafted on ‘GiSelA 7’ grow a little more vigorously than those on ‘GiSelA 5’ but less vigorously than those on ‘GiSelA 6’. This rootstock has not yet been thoroughly tested."
Re: Welche Süßkirsche für meinen Garten?
Nettle hat geschrieben: ↑5. Apr 2019, 13:20
Aus Rücksicht auf Nachbarn sollte man es vermeiden, möglichst große Bäume möglichst nah an der Grundstücksgrenze zu pflanzen. Sie können lange Schatten werfen und die gärtnerische Möglichkeiten von anderen Menschen stark beeinträchtigen. Ein Walnussbaum ist wegen der Ausscheidungen der Wurzeln und den Gerbstoffen und Pilzen in den Blättern bzw. Nusshüllen besonders problematisch.
Die Walnuss steht an der Straße und war aus "dorfplanerischer Sicht" explizit als Hausbaum gewünscht.
Mit den anderen Bäumen halte ich den gleichen Abstand ein, den die Nachbarn mit ihren Bäumen zu mir einhalten, nur haben die 50 Jahre+ Vorsprung. ;D
1min. Beitragsanzahl noch nicht erreicht
Klimazone 6a
Re: Welche Süßkirsche für meinen Garten?
Eine Walnuss ist ein sehr schöner Hausbaum. Sich an den Planzgewohnheiten der Nachbarn ist eine Möglichkeit. Ich habe das Pech, dass ich 6 Grundstücksnachbarn habe und alle haben ihre parkgroße Gewächse so weit wie möglich von ihren Gebäuden gesetzt. Über der Mauer wachsen Tannen, Süßkirschen und ein Haselstrauch, der bestimmt schon 7 m hoch und breit ist. Statt mitzumachen habe ich fast mittig im Garten Kirschen auf Gisela 5, Äpfel auf M7, und Pflaumenartiges auf St. JulienA gepflanzt. Es sieht zwar nicht so schön aus, aber ich kann die Bäume gut pflegen (z.B. Fruchtmumien entfernen) und habe keine Gewissensbisse, dass ich jemandem möglicherweise die Sonne wegnehme.
Re: Welche Süßkirsche für meinen Garten?
..wo bekommt man die Unterlage Gisela 7 ? Laut CDB gibt es diese Unterlage nicht zu kaufen.
Link entfernt!1/Link entfernt!1
1min. Beitragsanzahl noch nicht erreicht
Link entfernt!1/Link entfernt!1
1min. Beitragsanzahl noch nicht erreicht